844 Orange Cosmos Boulevard
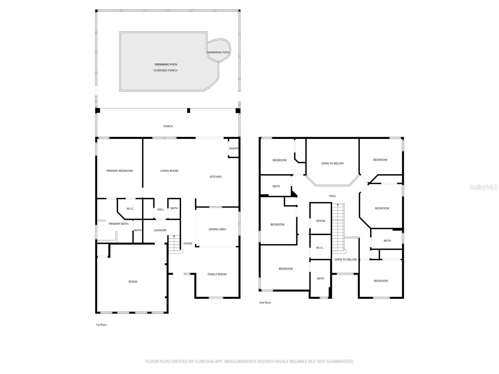
Active Exceptional opportunity to own a short-term rental in the sought-after Watersong Resort! This FULLY FURNISHED 7-bedroom, 4.5-bathroom vacation home comfortably accommodates up to 14 guests and is ideally positioned on a PREMIUM LOT with NO REAR NEIGHBORS and STEPS AWAY from the clubhouse and amenities. Designed with both comfort and functionality in mind, the home features a FLEXIBLE floor plan perfect for large groups and multi-family stays. A convenient MAIN-LEVEL PRIMARY SUITE with private ensuite bath adds accessibility and broad rental appeal.Step through sliding glass doors to a PRIVATE SCREENED HEATED POOL AND SPA, creating a relaxing outdoor retreat where guests can unwind and enjoy Florida living year-round. The peaceful conservation backdrop provides a desirable sense of seclusion that today’s vacationers seek.Entertainment is a standout feature with a Star Wars–themed GAME ROOM in the converted garage, complete with four TVs, gaming system, and foosball table — an exciting amenity that enhances guest experience and encourages repeat bookings. Upstairs you’ll find six additional bedrooms and three bathrooms, including two creatively HAND-PAINTED THEMED rooms. Ideally located DIRECTLY ACROSS FROM THE CLUBHOUSE AND RESORT AMENITIES, guests enjoy easy access to Watersong’s resort-style pool & spa, fitness center, basketball and volleyball courts, cybercafé, game room, playground, and picnic areas. Just a short drive to Disney, Universal, SeaWorld, major attractions, shopping, and dining makes this home a highly desirable vacation destination.Whether expanding an existing portfolio or entering the thriving short-term rental market, this turn-key investment offers location, layout, and guest-focused amenities that stand out in today’s competitive market.
View full listing details| Price: | 520,000 |
|---|---|
| Address: | 844 Orange Cosmos Boulevard |
| City: | Davenport |
| State: | Florida |
| Subdivision: | Watersong Ph 01 |
| MLS: | O6379795 |
| Square Feet: | 2,820 |
| Acres: | 0.32 |
| Lot Square Feet: | 0.32 acres |
| Bedrooms: | 7 |
| Bathrooms: | 5 |
| Half Bathrooms: | 1 |
Listed by: Palm Circle Realty 352-988-4975. Listing information ©My Florida Regional MLS DBA Stellar MLS 2026. All listing information is deemed reliable but not guaranteed and should be independently verified through personal inspection by appropriate professionals. Listings displayed on this website may be subject to prior sale or removal from sale. Availability of any listing should always be independently verified. Listing information is provided for consumer personal, non-commercial use, solely to identify potential properties for potential purchase. All other use is strictly prohibited and may violate relevant federal and state law. The listing broker’s offer of compensation is made only to participants of the MLS where the listing is filed. Properties displayed may be listed or sold by various
participants in the MLS. Data last updated on Wednesday, April 22nd, 2026 at 07:07:26 PM.
Data services provided by IDX Broker
