7643 Wilmington Loop
Unknown Welcome to this stunning TURNKEY, fully furnished 11-bedroom, 10-bathroom home located in the highly sought-after Encore Resort, just minutes from world-class theme parks! Perfectly designed for large groups and short-term rentals, this property comfortably SLEEPS 20–24 guests and offers the ultimate vacation experience with 9 ensuite bedrooms for maximum comfort and privacy. Gross RENTAL PROJECTIONS are $98,800, with a 56% OCCUPANCY RATE and an AVERAGE NIGHTLY RATE of $482.
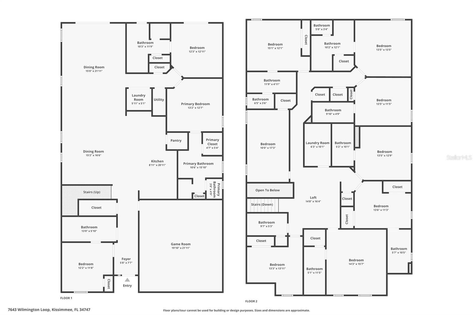
Step inside to a spacious open-concept floor plan featuring a gourmet kitchen equipped with 2 refrigerators, 2 dishwashers, and generous dining and living areas—ideal for entertaining. Three bedrooms are conveniently located downstairs, including one with an accessible ensuite bathroom. Upstairs, you’ll find 8 additional bedrooms, including 4 custom-themed bunk rooms your guests will love: Marvel, Ghostbusters, Spiderman, and Pirates of the Caribbean.
The living room’s sliding glass doors open to a covered patio, private heated pool and spa, and lush mature landscaping for added privacy—the perfect spot to unwind after a day at the parks.
For endless indoor fun, the converted Star Wars-themed game room is a showstopper, featuring a life-size R2-D2, air hockey, Aliens Extermination, Expert Shot Basketball, and two Nascar Virtual Racing arcade games. Additional features include laundry rooms on both levels, ensuring convenience for large groups. Whether you’re looking for a high-performing investment or a vacation home for making memories, this property delivers it all.
The Encore at Reunion Resort includes a spectacular clubhouse, award-winning restaurant, a Water Park, full-service spa, two playgrounds, state-of-the-art gym, basketball, volleyball & tennis courts. The HOA fee covers 24-hour gated entrances & roaming security, trash pickup, & an annual exterior house cleaning. A concierge desk is available at the clubhouse to assist with booking tickets, meals, airline check ins, resort provided shuttles to parks, & more. Enjoy being minutes away from three golf courses and in the heart of attractions, shopping, dining and more. Call us today to schedule your private tour!
| Price: | 965,000 |
|---|---|
| Address: | 7643 Wilmington Loop |
| City: | Kissimmee |
| State: | Florida |
| Subdivision: | Reunion West Ph 1 West & Ament Ctr Rplt |
| MLS: | O6305196 |
| Square Feet: | 4,707 |
| Acres: | 0.15 |
| Lot Square Feet: | 0.15 acres |
| Bedrooms: | 11 |
| Bathrooms: | 10 |
Listed by: Palm Circle Realty 352-988-4975. Listing information ©My Florida Regional MLS DBA Stellar MLS 2026. All listing information is deemed reliable but not guaranteed and should be independently verified through personal inspection by appropriate professionals. Listings displayed on this website may be subject to prior sale or removal from sale. Availability of any listing should always be independently verified. Listing information is provided for consumer personal, non-commercial use, solely to identify potential properties for potential purchase. All other use is strictly prohibited and may violate relevant federal and state law. The listing broker’s offer of compensation is made only to participants of the MLS where the listing is filed. Properties displayed may be listed or sold by various
participants in the MLS. Data last updated on Thursday, April 23rd, 2026 at 07:16:45 AM.
Data services provided by IDX Broker
